ID CP2892176

Apartament de vanzare cu 2 camere, renovat complet, cu boxa prorie - Complex

ID CP2892176

117,500 € (negociabil)

Apartament cu 2 camere de vânzare
Complex Studentesc, Timisoara
55 mp

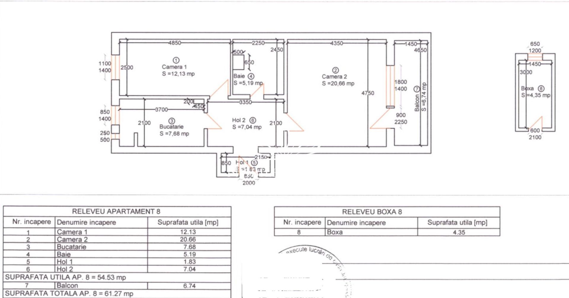
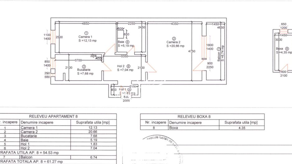
Oferim spre vanzare un apartament situat in zona Complexului Studentesc, intr-un bloc de caramida, la etajul 2 din 4. Proprietatea a trecut printr-un proces de renovare completa in anul 2022, moment in care a fost refacut totul de la zero, inclusiv intreaga instalatie electrica, oferind astfel viitorilor proprietari siguranta si confort, fara a necesita investitii ulterioare. Include boxa pentru depozitare la subsol.

Incalzire: De la reteaua orasului (Colterm). Are clima proprie.

Finantare: Se accepta achizitia prin credit ipotecar.

Compartimentare: dormitor, living, bucatarie, baie si un balcon foarte spatios.

Dormitor: 12 mp

Living: 21 mp

Bucatarie: 8 mp

Baie: 5 mp

Hol 1: 2 mp

Ho 2l: 7 mp

Balcon: 7 mp

Suprafata Utila (interior): 55 mp

Suprafata Totala (utila + balcon): 61 mp

Pentru mai multe detalii apelati numarul de telefon din anunt

Citește mai mult

  • Tip apartament
    Apartament
  • Număr camere
    2
  • Dormitoare
    1
  • Număr bucătării
    1
  • Număr băi
    1
  • Etaj
    2
  • Suprafață utilă
    55 mp
  • Suprafață construită
    65 mp
  • Disponibilitate
    Imediat
  • Număr balcoane
    1
  • Imobil
    Bloc de apart.
  • Număr etaje clădire
    4

Facilități

Aer condiționat
Apă
Apometre
Aragaz
Bucătărie închisă
Bucătărie mobilată
Bucătărie utilată
Cabină de duș
Calorifere
Canalizare
CATV
Contor electric
Contor gaz
Curent
Faianță
Ferestre PVC
Frigider
Gaz
Gresie
Hotă
Iluminat stradal
Interfon
Internet
Mașină de spălat rufe
Mijloace de transport în comun
Mobilat complet
Mobilat lux
Parchet
Parchet laminat
Senzor de fum
Străzi asfaltate
Telefon
Termoficare
TV
Ușă intrare metal
Uși interior MDF
Vopsea lavabilă
Alexandru Spinu - Nobile Dimora
Alexandru Spinu
Consultant imobiliar

‪+40 736 465 244‬


Solicită chiar acum o vizionare
Nume
Telefon
Email
Sună acum Solicită vizionare
Necesare:

Site-ul nu poate funcționa corect fără aceste cookie-uri. Vezi cookie-urile

Statistică:

Strângem statistici anonime despre voi, vizitatorii unici, pentru a vă îmbunătăți experiența dumneavoastră. Vezi cookie-urile

Marketing:

Pentru a ne promova mai eficient serviciile noastre, folosim cookies pentru a vă identifica și a vă oferi proprietăți și servicii personalizate. Vezi cookie-urile

Acest site folosește cookies, află detalii. Alege ce tipuri de cookies dorești să permitem: